Rosolini – House in Via Alighieri

180.000,00 

Rif:
94390

Overview

Property Type
2
Bedrooms
2
Bathrooms
44
Garage
Square meters
210
Metri Quadri
Year of construction

Description

Situated in Rosolini, in Via Alighieri, this spacious detached house is on three levels and is about 120 sqm, with a large garage of about 44 sqm.

Ground floor:

Accessed from the main entrance, there is a private courtyard of approximately 19 sqm. This is followed by a large garage of 44 sqm, perfect for accommodating several vehicles or for use as a storage room. Completing the floor, which is approximately 91 sqm in size, are two functional storage rooms and an internal stairwell leading to the upper floors.

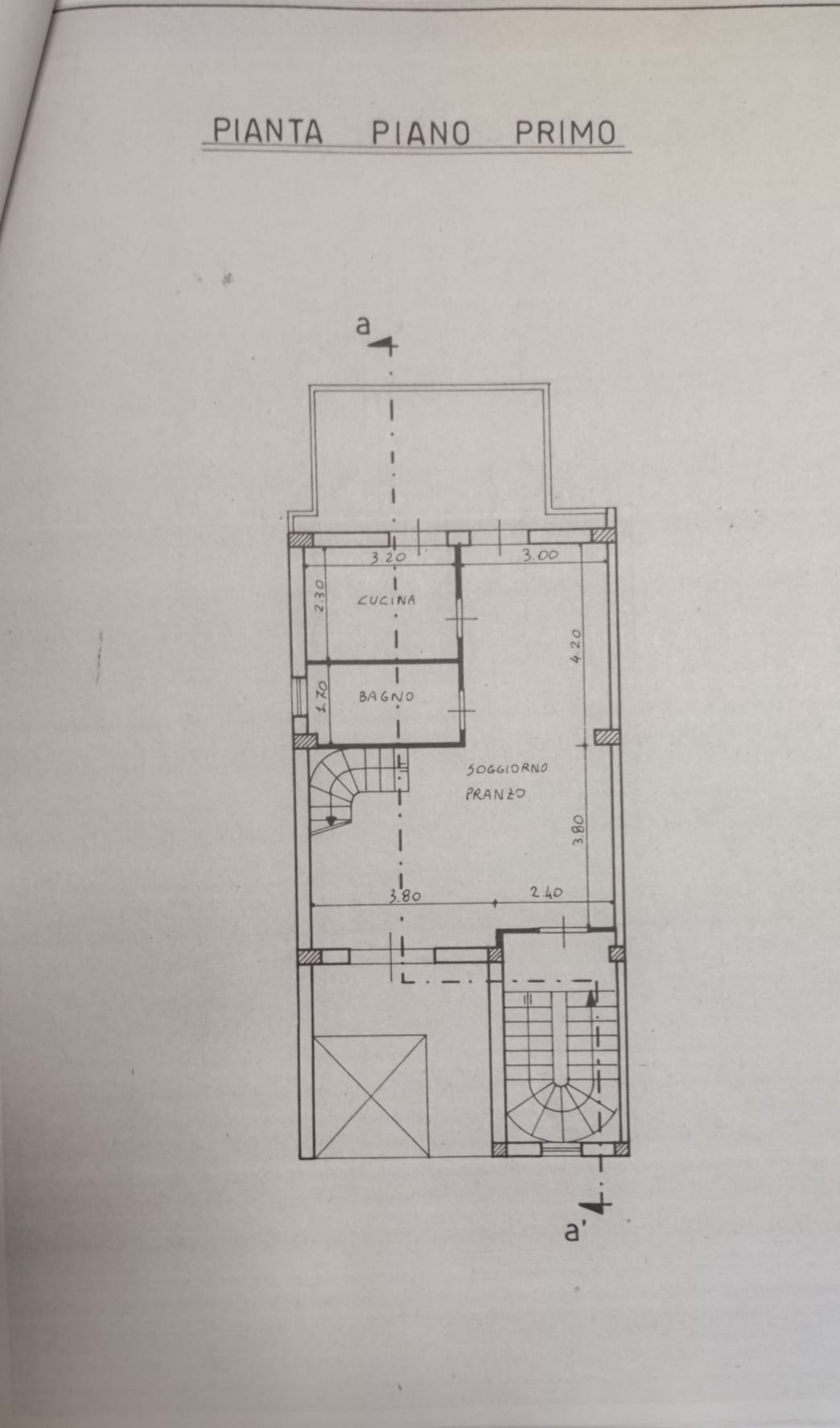
First floor:

The first level, measuring approximately 60 square metres, is dedicated to the living area. Here we find a bright living room with access to a veranda, which offers an ideal space to enjoy relaxing moments outdoors. The separate kitchen is large and perfect for those who love to cook. On the same floor there is a complete bathroom, convenient for guests and for everyday use.

Second floor:

The second level, approximately 60 square metres in size, is dedicated to the sleeping area, consisting of a spacious and well-lit master bedroom, a small bedroom ideal for children or to be used as a study, and a second bathroom that comfortably serves both rooms.

This house is an ideal solution for those seeking well-distributed space, convenience and a central location in Rosolini. The presence of the large garage and the courtyard makes it perfect for a family or for those who need extra space.

Planimetry

Address
Via Dante Alighieri
Zip/Postal Code
96019

Features

Send us a message

WhatsApp